Skip To Content

6255 Beechtree Drive , #4202

West Des Moines, IA 50266
  • $175,000
  • STATUS: Active
  • ON SITE: 53 Days
  • MLS #: 733107
$175,000
  • 2
    BEDS
  • N/A
    ACRES
  • 2
    BATHS
  • 0
    1/2 BATHS
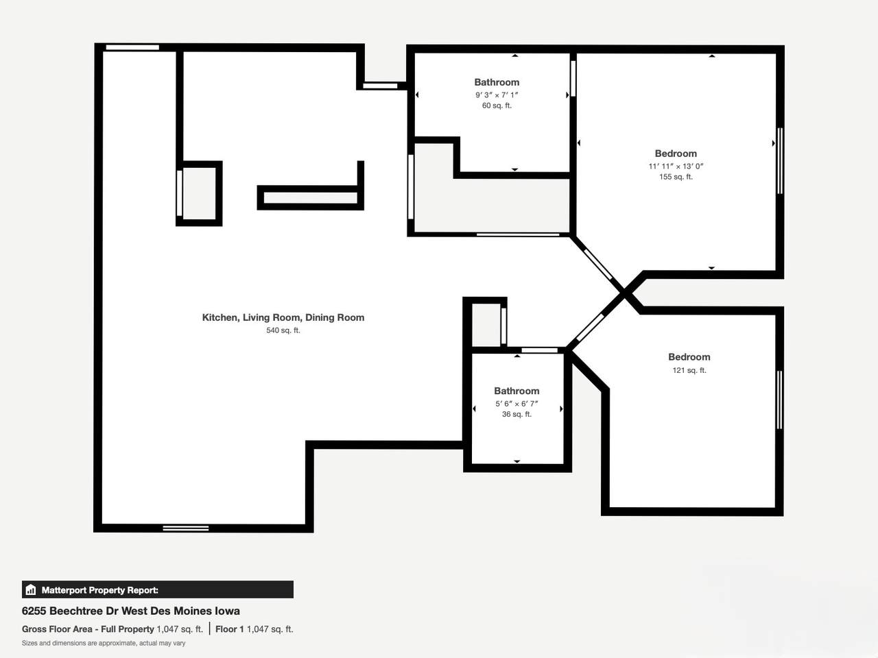
  • 1,125
    SQFT
  • $156
    $/SQFT
Neighborhood:
Type:
Condo
Built:
2004
County:

School Ratings & Info

School District:

Description

Don't miss out on this updated conveniently located condo in West Des Moines! Fall in love with this open concept floor plan with upgraded LVP flooring throughout. Kitchen offers all newer stainless steel appliances. Custom tile surround on the fireplace and modern vanities and mirrors in the baths. Conveniently located next to Jordan Creek Town Center and WDM Trail system. One of few Condos with a pool! Great view and security from the second floor. Building does have a elevator. One car garage, secured building with extra parking available.

Monthly Payment Calculator

© 2026 Des Moines Multiple Listing Service. IDX information is provided exclusively for consumers’ personal, non-commercial use and may not be used for any purpose other than to identify prospective properties consumers may be interested in purchasing. Data is deemed reliable but is not guaranteed accurate by the MLS or Kooyman Real Estate Team | RE/MAX Concepts. Data last updated: 2026-03-14T00:22:35.47.
www.kooymanrealestateteam.com/homes/172295022
Print Image

6255 Beechtree Drive , #4202 West Des Moines, IA 50266

  • Price: $175,000
  • Status: Active
  • On Site: 53 Days
  • MLS #: 733107
2
Beds
2
Baths
0
½ Baths
N/A
Acres
1,125
SQFT
$156
$/SQFT
2004
Built
Neighborhood:
West Des Moines
County:
Dallas
Area:
West Des Moines
School District:
Waukee
Property Description
Don't miss out on this updated conveniently located condo in West Des Moines! Fall in love with this open concept floor plan with upgraded LVP flooring throughout. Kitchen offers all newer stainless steel appliances. Custom tile surround on the fireplace and modern vanities and mirrors in the baths. Conveniently located next to Jordan Creek Town Center and WDM Trail system. One of few Condos with a pool! Great view and security from the second floor. Building does have a elevator. One car garage, secured building with extra parking available.
Exterior Features

Attached Garage YN No Construction Materials Stone Vinyl Siding Exterior Features Deck Foundation Details Poured Slab Garage YN Yes Parking Features Detached Garage One Car Garage Patio And Porch Features Covered Deck Pool Features In Ground Road Surface Type Concrete Roof Asphalt Shingle

Interior Features

Appliances Dryer Dishwasher Microwave Refrigerator Stove Washer Cooling Central Air Cooling YN Yes Fireplace YN Yes Fireplaces Total 1 Heating Electric Forced Air Natural Gas Heating YN Yes Interior Features Dining Area Main Level Bedrooms 2

Property Features

Association Fee 295 Association Fee Frequency Monthly Association Fee Includes Insurance Maintenance Grounds Maintenance Structure Trash Snow Removal Community Features Community Pool Home Warranty YN No Lease Considered YN No Listing Terms Cash Conventional Pets Allowed Pet Restrictions Property Sub Type Condominium Property Sub Type Additional Condominium Townhouse Apartment Sewer Public Sewer Structure Type Apartment Multi Family Tax Annual Amount 2290 Water Source Public Zoning Res

Listing provided courtesy of The American Real Estate Co.: (515) 708-3997. © 2026 Des Moines Multiple Listing Service.
© 2026 Des Moines Multiple Listing Service. IDX information is provided exclusively for consumers’ personal, non-commercial use and may not be used for any purpose other than to identify prospective properties consumers may be interested in purchasing. Data is deemed reliable but is not guaranteed accurate by the MLS or Kooyman Real Estate Team | RE/MAX Concepts. Data last updated: 2026-03-14T00:22:35.47.
 
https://bt-photos.global.ssl.fastly.net/desmoines/1280_boomver_1_733107-2.jpg https://bt-photos.global.ssl.fastly.net/desmoines/1280_boomver_1_733107-2.jpg https://bt-photos.global.ssl.fastly.net/desmoines/1280_boomver_1_733107-2.jpg
Logo
Kooyman Real Estate Team | RE/MAX Concepts
7101 Vista Drive
West Des Moines IA, 50266